
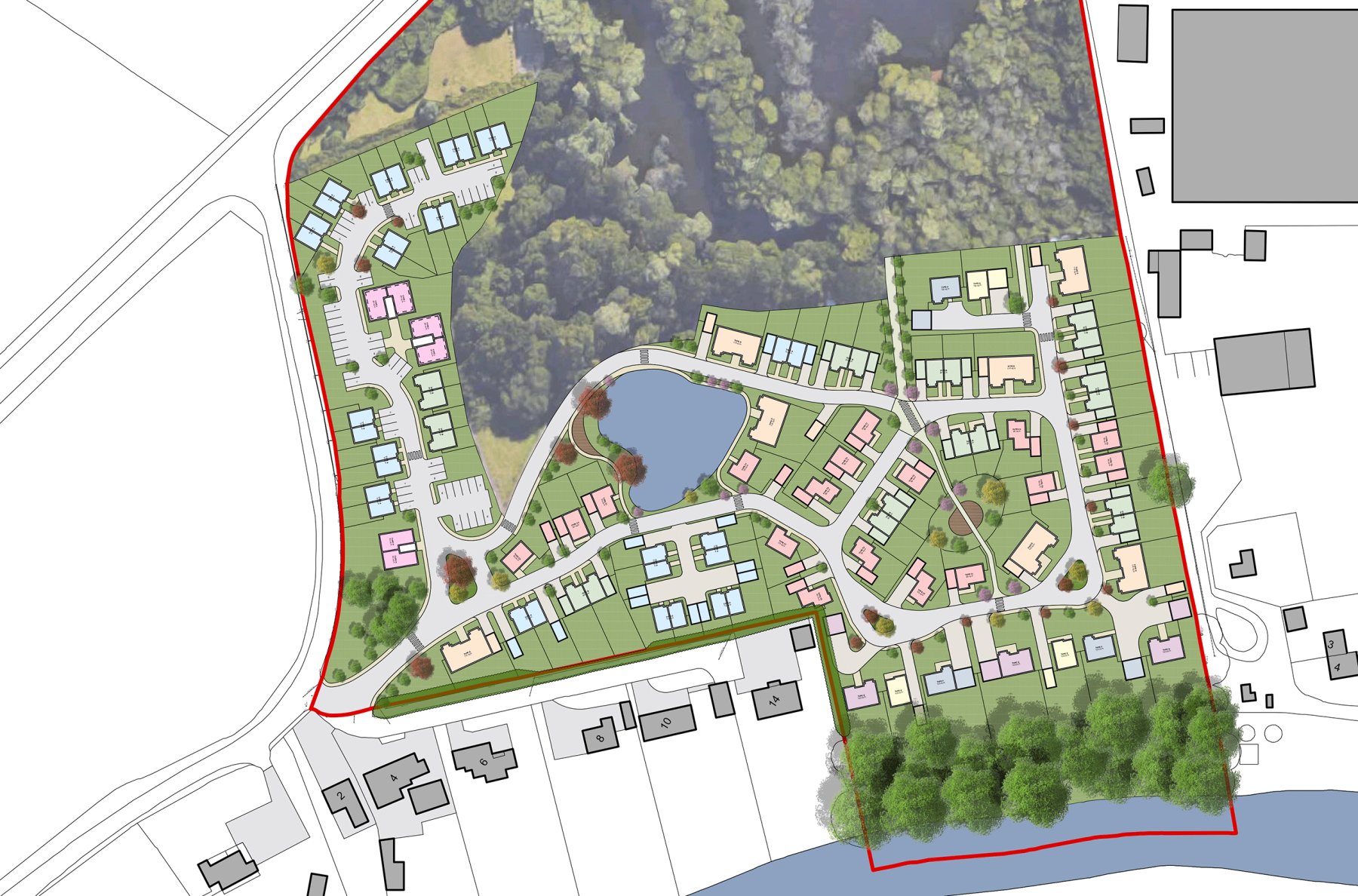
Master plan for large housing scheme comprising a mix of high density 2-3 bed housing, through to low density 4-5 bed accommodation. The site benefits from an extensive area of natural green space, to be maintained and made accessible for use by members of the public. The layout of the houses have been carefully thought out to maximise the occupant's amenities, giving access to private gardens, off road parking, and open countryside.